Contact

Model Home A

SANCTUARY BOUTIQUE RESIDENCES

MODEL HOME A

3 BED FLEX | 3.5 BATH | 1,459,78m²/15,712.95 ft² LAND | 208.69tm²/2,246.30 ft² HOME

Inspired by banana plantation architecture, Model Home A pairs coastal-neutral tones, natural textures, and lush landscaping with a calm indoor-outdoor flow. Set within Sanctuary’s gated, golf-cart-friendly community just a short walk from Marina Village, it’s designed for buyers who want privacy, beauty, and a grounded place to return to after time on the water or exploring the Southern Pacific.

 

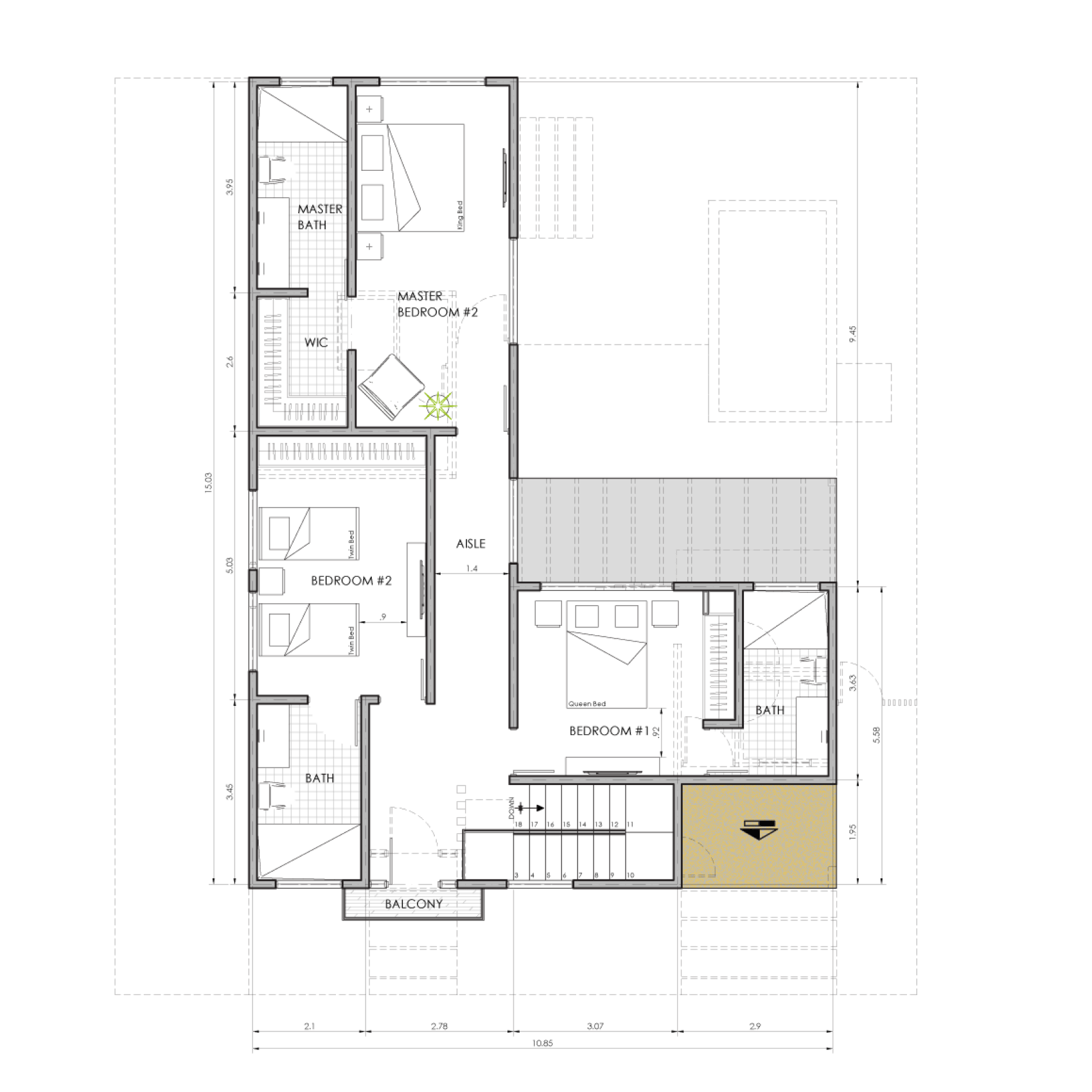
Model Home A’s standard layout offers 3 bedrooms and 3.5 bathrooms across two levels, with an open living, dining, and kitchen area, a main-level primary suite, and a private terrace with pool, lounge area, and landscaped garden. Upstairs, a family room connects a second-level primary suite and an additional ensuite bedroom and a balcony. A flexible 4-bedroom, 4.5-bath option expands the upper level for owners who want more space for family or guests.

Download Model Home A Floor Plan

3 BEDROOM - FLOOR PLANS

1st floor

103.88m² | 1,118.16 ft²

2nd floor

63.63m² | 684.92 ft²

Sanctuary Boutique Residences Model Home A 3-bedroom floor plan, 1,118 sq ft first floor with private pool, Golfito Costa Rica

2st floor

63.63m²

2nd floor

63.63m² | 684.92 ft²

Sanctuary Boutique Residences Model Home A 3-bedroom floor plan, 684.92 sq ft second floor with private pool, Golfito Costa Rica

4 BEDROOM - FLEX OPTIONAL

2ND FLOOR

103.88m² | 1,118.16 ft²

Sanctuary Boutique Residences Model Home A 4-bedroom flex floor plan, second floor layout, Golfito Costa Rica

2nd floor

97.73m² | 1,052.00 ft²

Sanctuary Boutique Residences Model Home A 4-bedroom flex floor plan, second floor distribution, Golfito Costa Rica

MODEL HOME A | ADVENTURE & NATURE

A thoughtfully designed model home that reflects Sanctuary’s marina-connected lifestyle — offering comfort, privacy, and effortless living in a calm, low-density coastal setting.

KEY FEATURES

  • Marina-integrated residential living
  • Boutique community of 50 residences
  • Fully turnkey model homes
  • Designed for boating and ocean lifestyles
  • Calm, residential marina environment
  • Located in Costa Rica’s biodiverse Golfo Dulce
  • Functional luxury built for everyday life
  • On-site management and marina services
  • Immediate access to sport fishing and exploration
  • Early ownership in a growing marina destination

INTERACTIVE MAP

Lot Available

Lot 1

Sanctuary Boutique Residences · Cartago, Costa Rica

— m²
Available
$255,000 USD

View Model Home →